Have Questions? We Have Answers

W149N11962 Red Holly Dr

Germantown, WI 53022

Neighborhood: Wrenwood North

Home Plan: The Monterey

Lot 70


  • 4 Bedrooms
  • 2.5 Bathrooms
  • 2,479 Sq. Ft.
  • 3 Car Garage

About This Home

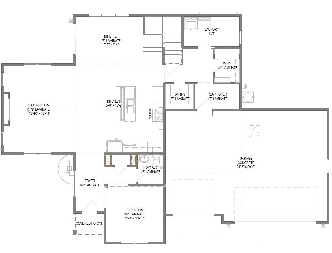
The Monterey stands out with its unique layout, crafting a distinctive front exterior. The grand, two-story Foyer ushers you into a flexible space with a wide entryway and an adjacent discreet Powder Room. Embracing an open-concept design, the primary living space includes a large Kitchen, a comfortable Dinette, and a Great Room that extends out to the side of the home for an added sense of spaciousness. The staircase, conveniently located at the back of the home near the Rear Foyer, provides access to the upper level. This area incorporates a walk-in pantry, a walk-in closet, and a Laundry Room neatly tucked away behind a pocket door. The second floor presents three secondary bedrooms, a full bathroom, and a sumptuous Primary Suite, featuring an en suite bathroom and a uniquely spacious, angular walk-in closet. The Monterey's thoughtful design and flow contribute to its status as our best-selling plan.


Principal and interest only.

$
$
%
%
Yrs.

Home Features

  • Energy Recovery Ventilators (ERVs): Enjoy continuous fresh air circulation without energy loss, maintaining superior indoor air quality and comfort.1.5” (R 7.5) foam insulation on outside of the full foundation wall
  • High-Efficiency Heating with Smart Control: Our 95% high-efficiency furnace paired with a digital smart thermostat ensures optimal indoor temperature and comfort while significantly reducing energy consumption and utility costs.
  • EPA Indoor airPLUS™ Certified
  • U.S. Department of Energy: Energy Star™ Certified
  • Complete field test performed by a third-party, certified professional
  • Wisconsin Focus on Energy™ homes exceeding minimum requirements
  • RESNET EnergySmart Builder
  • Superior Insulation for Ultimate Comfort: Closed-Cell Spray Foam Insulation (R-14) in basement box sills and 1.5” (R-7.5) foam insulation on the exterior foundation walls keep your home warm in winter and cool in summer, significantly reducing energy costs.
  • Air Tight Home:  Our Super Tight Homes benefit you by reducing energy bills, eliminating drafts, and improving indoor air quality, and make your new home more comfortable.

  • Energy Recovery Ventilators (ERVs): Enjoy continuous fresh air circulation without energy loss, maintaining superior indoor air quality and comfort.1.5” (R 7.5) foam insulation on outside of the full foundation wall
  • High-Efficiency Heating with Smart Control: Our 95% high-efficiency furnace paired with a digital smart thermostat ensures optimal indoor temperature and comfort while significantly reducing energy consumption and utility costs.

  • EPA Indoor airPLUS™ Certified
  • U.S. Department of Energy: Energy Star™ Certified
  • Complete field test performed by a third-party, certified professional
  • Wisconsin Focus on Energy™ homes exceeding minimum requirements
  • RESNET EnergySmart Builder

  • Superior Insulation for Ultimate Comfort: Closed-Cell Spray Foam Insulation (R-14) in basement box sills and 1.5” (R-7.5) foam insulation on the exterior foundation walls keep your home warm in winter and cool in summer, significantly reducing energy costs.
  • Air Tight Home:  Our Super Tight Homes benefit you by reducing energy bills, eliminating drafts, and improving indoor air quality, and make your new home more comfortable.

The Monterey


2,479sf New Home in Germantown, WI

Ranked 1st in Wisconsin and 7th in the US for the lowest average HERS score.

Explore the Neighborhood.

View Nearby:

Wrenwood North

Elementary: Rockfield Elementary School, Macarthur Elementary School
Middle: Kennedy Middle School
High: Germantown High School

Follow I-94 E and I-41 to WI-100 E/Main St in Menomonee Falls. Take exit 50A from I-41. Follow Fountain Blvd to Country Aire Dr in Germantown.

More Homes for You!


Let’s Connect.

Your EXTRAordinary Experience Starts Now!


Call or fill out the form below to start your journey to a healthier, more comfortable home! We're here to assist you in finding the perfect match from our range of quality homes, ensuring your experience with us is as extraordinary as the home you choose.

We promise, no spam. Just one-on-one chats with our Online Sales Team if you prefer texting.