Have Questions? We Have Answers

N66W25689 Big Sky Dr

Sussex, WI 53089

Neighborhood: Vista Run

Home Plan: The Evergreen

Lot 145


  • 4 Bedrooms
  • 2.5 Bathrooms
  • 2,624 Sq. Ft.
  • 3 Car Garage

Priced

$739,900


About This Home

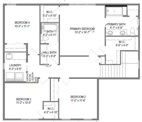
The Evergreen features a welcoming two-story Foyer with a large flex room at the front of the home. Just past the Flex Room is a Powder Room before the entire floor plan opens to the living space at the back of the home. On one side is the expansive Kitchen, which has an island surrounded by L-shaped perimeter cabinets and a large walk-in pantry. On the other side of the main living space is the Great Room, which is separated from the Kitchen by the Dinette. The Rear Foyer is located near the stairs to the upper level and features a walk-in closet. The second floor has 3 secondary bedrooms, Laundry Room, Full Bathroom, and Owner’s Suite with an oversized walk-in closet.


Principal and interest only.

$
$
%
%
Yrs.

Home Features

  • Energy Recovery Ventilators (ERVs): Enjoy continuous fresh air circulation without energy loss, maintaining superior indoor air quality and comfort.1.5” (R 7.5) foam insulation on outside of the full foundation wall
  • High-Efficiency Heating with Smart Control: Our 95% high-efficiency furnace paired with a digital smart thermostat ensures optimal indoor temperature and comfort while significantly reducing energy consumption and utility costs.
  • EPA Indoor airPLUS™ Certified
  • U.S. Department of Energy: Energy Star™ Certified
  • Complete field test performed by a third-party, certified professional
  • Wisconsin Focus on Energy™ homes exceeding minimum requirements
  • RESNET EnergySmart Builder
  • Superior Insulation for Ultimate Comfort: Closed-Cell Spray Foam Insulation (R-14) in basement box sills and 1.5” (R-7.5) foam insulation on the exterior foundation walls keep your home warm in winter and cool in summer, significantly reducing energy costs.
  • Air Tight Home:  Our Super Tight Homes benefit you by reducing energy bills, eliminating drafts, and improving indoor air quality, and make your new home more comfortable.

  • Energy Recovery Ventilators (ERVs): Enjoy continuous fresh air circulation without energy loss, maintaining superior indoor air quality and comfort.1.5” (R 7.5) foam insulation on outside of the full foundation wall
  • High-Efficiency Heating with Smart Control: Our 95% high-efficiency furnace paired with a digital smart thermostat ensures optimal indoor temperature and comfort while significantly reducing energy consumption and utility costs.

  • EPA Indoor airPLUS™ Certified
  • U.S. Department of Energy: Energy Star™ Certified
  • Complete field test performed by a third-party, certified professional
  • Wisconsin Focus on Energy™ homes exceeding minimum requirements
  • RESNET EnergySmart Builder

  • Superior Insulation for Ultimate Comfort: Closed-Cell Spray Foam Insulation (R-14) in basement box sills and 1.5” (R-7.5) foam insulation on the exterior foundation walls keep your home warm in winter and cool in summer, significantly reducing energy costs.
  • Air Tight Home:  Our Super Tight Homes benefit you by reducing energy bills, eliminating drafts, and improving indoor air quality, and make your new home more comfortable.

The Evergreen


2,624sf New Home in Sussex, WI

Ranked 1st in Wisconsin and 7th in the US for the lowest average HERS score.

Explore the Neighborhood.

View Nearby:

Vista Run

Middle: Silver Spring Intermediate School, Templeton Middle School
High: Hamilton High School

Take WI-164 N to Silver Spring Road. Travel West on Silver Spring Road. Neighborhood is on the left.

More Homes for You!


Let’s Connect.

Your EXTRAordinary Experience Starts Now!


Call or fill out the form below to start your journey to a healthier, more comfortable home! We're here to assist you in finding the perfect match from our range of quality homes, ensuring your experience with us is as extraordinary as the home you choose.

We promise, no spam. Just one-on-one chats with our Online Sales Team if you prefer texting.