Have Questions? We Have Answers

The Alpine

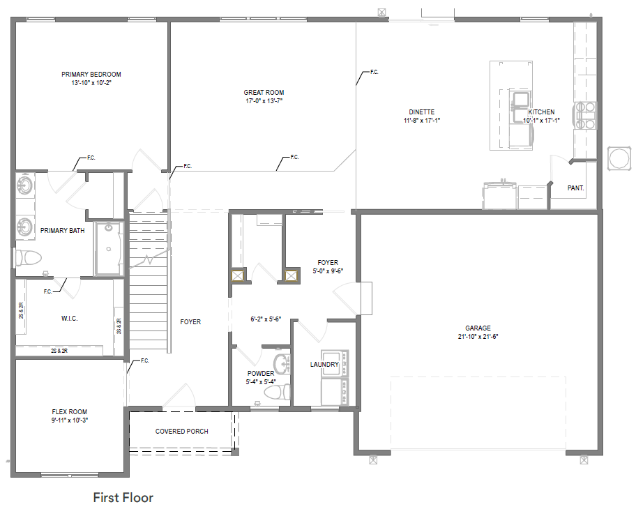
Home Style: First Floor Primary


  • 4 Bedrooms
  • 2.5 Bathrooms
  • 2,281 Sq. Ft.
  • 2 - 3 Car Garage
  • EPA Indoor airPLUS & Energy Star Certified

About This Home Plan

The Alpine brings together open-concept living, flexible spaces, and a convenient first-floor primary bedroom, all designed to fit a variety of lifestyles.

On the main floor, you’re welcomed by a covered front porch and a bright foyer that opens into the heart of the home. The great room, dinette, and kitchen flow together, offering plenty of room for gathering and everyday living. A large kitchen island, walk-in pantry, and ample counter space make meal prep easy, while the dinette’s open layout is perfect for hosting or casual family meals.

Tucked privately on the first floor, the primary bedroom includes a spacious walk-in closet and a well-appointed primary bath with double sinks and a walk-in shower. A flex room near the front of the home can serve as a home office, playroom, or quiet retreat. A convenient first-floor laundry room and powder room sit right off the garage entry, helping keep daily routines organized.

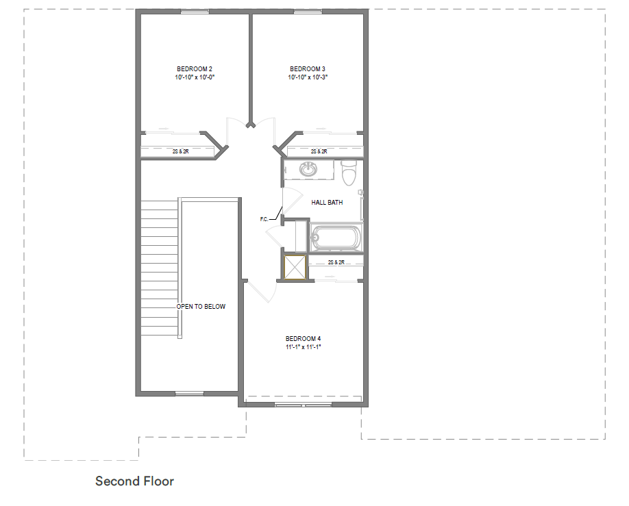
Upstairs, three additional bedrooms offer plenty of space for family or guests. A shared hall bath sits centrally off the landing, and an open-to-below feature brings in natural light and keeps the second floor feeling airy.


New Home in Cambridge, WI

Let’s Talk

If you have any questions, we’re here to help.

Elevations

Alpine Craftsman

Alpine Farmhouse

Alpine Modern

Alpine Traditional

Experience Your Home Design in Real Time

This tool is meant for inspiration. Homes are shown with upgraded hardboard siding. Because we work with different suppliers in each market, colors shown are examples only. If you love a specific look, we’ll match you with comparable options when you choose your finishes.

The Alpine


Plan Features

  • Energy Recovery Ventilators (ERVs): Enjoy continuous fresh air circulation without energy loss, maintaining superior indoor air quality and comfort.1.5” (R 7.5) foam insulation on outside of the full foundation wall
  • High-Efficiency Heating with Smart Control: Our 95% high-efficiency furnace paired with a digital smart thermostat ensures optimal indoor temperature and comfort while significantly reducing energy consumption and utility costs.
  • EPA Indoor airPLUS™ Certified
  • U.S. Department of Energy: Energy Star™ Certified
  • Complete field test performed by a third-party, certified professional
  • Wisconsin Focus on Energy™ homes exceeding minimum requirements
  • RESNET EnergySmart Builder
  • Superior Insulation for Ultimate Comfort: Closed-Cell Spray Foam Insulation (R-14) in basement box sills and 1.5” (R-7.5) foam insulation on the exterior foundation walls keep your home warm in winter and cool in summer, significantly reducing energy costs.
  • Air Tight Home:  Our Super Tight Homes benefit you by reducing energy bills, eliminating drafts, and improving indoor air quality, and make your new home more comfortable.

  • Energy Recovery Ventilators (ERVs): Enjoy continuous fresh air circulation without energy loss, maintaining superior indoor air quality and comfort.1.5” (R 7.5) foam insulation on outside of the full foundation wall
  • High-Efficiency Heating with Smart Control: Our 95% high-efficiency furnace paired with a digital smart thermostat ensures optimal indoor temperature and comfort while significantly reducing energy consumption and utility costs.

  • EPA Indoor airPLUS™ Certified
  • U.S. Department of Energy: Energy Star™ Certified
  • Complete field test performed by a third-party, certified professional
  • Wisconsin Focus on Energy™ homes exceeding minimum requirements
  • RESNET EnergySmart Builder

  • Superior Insulation for Ultimate Comfort: Closed-Cell Spray Foam Insulation (R-14) in basement box sills and 1.5” (R-7.5) foam insulation on the exterior foundation walls keep your home warm in winter and cool in summer, significantly reducing energy costs.
  • Air Tight Home:  Our Super Tight Homes benefit you by reducing energy bills, eliminating drafts, and improving indoor air quality, and make your new home more comfortable.
2,281sf New Home in Cambridge, WI

Ranked 1st in Wisconsin and 7th in the US for the lowest average HERS score.

More Home Plans for You!


Let’s Connect.

Your EXTRAordinary Experience Starts Now!


Call or fill out the form below to start your journey to a healthier, more comfortable home! We're here to assist you in finding the perfect match from our range of quality homes, ensuring your experience with us is as extraordinary as the home you choose.

We promise, no spam. Just one-on-one chats with our Online Sales Team if you prefer texting.