Have Questions? We Have Answers

2886 Turnip Way

Fitchburg, WI 53711

Neighborhood: Terravessa

Home Plan: The Rockwell

Lot 313


  • 2 Bedrooms
  • 2.0 Bathrooms
  • 1,491 Sq. Ft.
  • 2 Car Garage

Priced

$538,900


About This Home

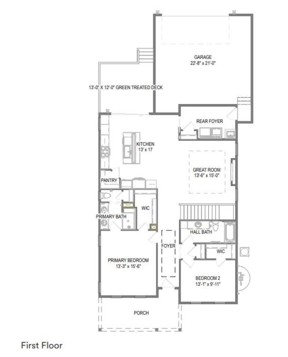
Healthy, Energy-Efficient, NEW Construction, Built for the way you live! Discover easy living in Terravessa, a vibrant community just 12 minutes from the heart of downtown with convenient access to local shops and amenities. Nestled beside a stunning 170-acre nature preserve with scenic walking trails, this ranch home offers the perfect blend of comfort and nature. This charming home features an oversized front porch to enjoy your morning coffee. Inside, enjoy open-concept living with a bright, spacious kitchen overlooking the great room, highlighted by a box tray ceiling and cozy fireplace—ideal for relaxing or entertaining. The primary suite features a private en suite bath with tiled shower and a walk-in closet. A second bedroom also includes a walk-in closet, offering great storage and flexibility. Step outside to a green-treated deck perfect for outdoor enjoyment. Complete with a 2-car garage, this home offers thoughtful design in an exceptional location.


Principal and interest only.

$
$
%
%
Yrs.

Home Features

  • Energy Recovery Ventilators (ERVs): Enjoy continuous fresh air circulation without energy loss, maintaining superior indoor air quality and comfort.1.5” (R 7.5) foam insulation on outside of the full foundation wall
  • High-Efficiency Heating with Smart Control: Our 95% high-efficiency furnace paired with a digital smart thermostat ensures optimal indoor temperature and comfort while significantly reducing energy consumption and utility costs.
  • EPA Indoor airPLUS™ Certified
  • U.S. Department of Energy: Energy Star™ Certified
  • Complete field test performed by a third-party, certified professional
  • Wisconsin Focus on Energy™ homes exceeding minimum requirements
  • RESNET EnergySmart Builder
  • Superior Insulation for Ultimate Comfort: Closed-Cell Spray Foam Insulation (R-14) in basement box sills and 1.5” (R-7.5) foam insulation on the exterior foundation walls keep your home warm in winter and cool in summer, significantly reducing energy costs.
  • Air Tight Home:  Our Super Tight Homes benefit you by reducing energy bills, eliminating drafts, and improving indoor air quality, and make your new home more comfortable.

  • Energy Recovery Ventilators (ERVs): Enjoy continuous fresh air circulation without energy loss, maintaining superior indoor air quality and comfort.1.5” (R 7.5) foam insulation on outside of the full foundation wall
  • High-Efficiency Heating with Smart Control: Our 95% high-efficiency furnace paired with a digital smart thermostat ensures optimal indoor temperature and comfort while significantly reducing energy consumption and utility costs.

  • EPA Indoor airPLUS™ Certified
  • U.S. Department of Energy: Energy Star™ Certified
  • Complete field test performed by a third-party, certified professional
  • Wisconsin Focus on Energy™ homes exceeding minimum requirements
  • RESNET EnergySmart Builder

  • Superior Insulation for Ultimate Comfort: Closed-Cell Spray Foam Insulation (R-14) in basement box sills and 1.5” (R-7.5) foam insulation on the exterior foundation walls keep your home warm in winter and cool in summer, significantly reducing energy costs.
  • Air Tight Home:  Our Super Tight Homes benefit you by reducing energy bills, eliminating drafts, and improving indoor air quality, and make your new home more comfortable.

The Rockwell


1,491sf New Home in Fitchburg, WI

Ranked 1st in Wisconsin and 7th in the US for the lowest average HERS score.

Explore the Neighborhood.

View Nearby:

Terravessa

Elementary: Stoner Prairie Elementary School
Middle: Oregon Middle School
High: Oregon High School

Follow I-94 W, I-39 S/I-90 E and US-12 W/US-18 Wto Co Hwy MM S/Co Rd MM/Rimrock Rd in Madison. Take exit 262 from US-12 W/US-18 W. Use any lane to turn left onto Co Hwy MM S/Co Rd MM/Rimrock Rd. Continue to follow Co Hwy MM S/Co Rd MM to Lacy Rd. Destination is on the left.

More Homes for You!


Let’s Connect.

Your EXTRAordinary Experience Starts Now!


Call or fill out the form below to start your journey to a healthier, more comfortable home! We're here to assist you in finding the perfect match from our range of quality homes, ensuring your experience with us is as extraordinary as the home you choose.

We promise, no spam. Just one-on-one chats with our Online Sales Team if you prefer texting.