Have Questions? We Have Answers

The Matisse

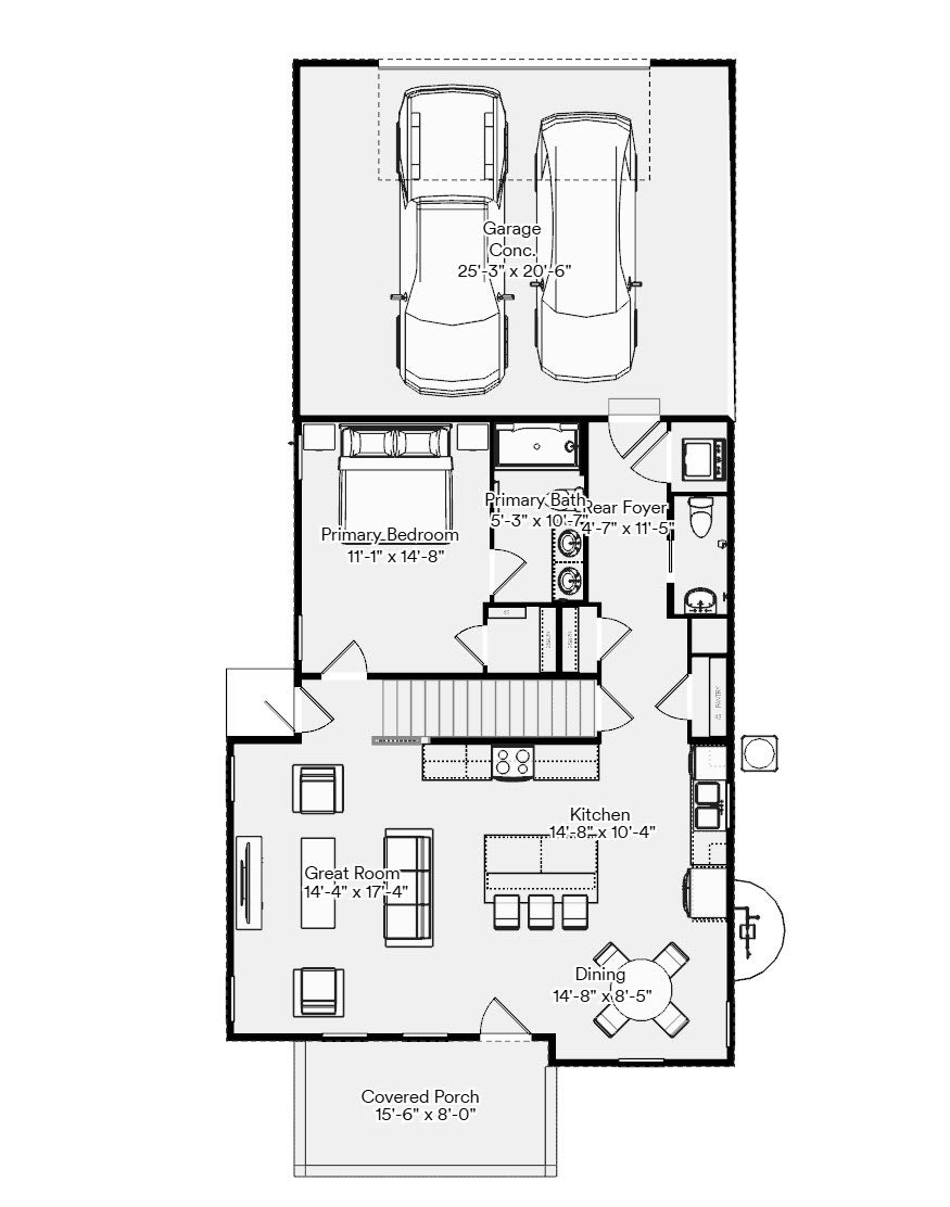
Home Style: First Floor Primary


  • 3 - 4 Bedrooms
  • 2.5 Bathrooms
  • 1,556 Sq. Ft.
  • 2 - 3 Car Garage
  • EPA Indoor airPLUS & Energy Star Certified

About This Home Plan

The Matisse blends connected living with thoughtful everyday convenience. Step in from the covered front porch and you’re welcomed into an open main living area that brings the kitchen, great room, and dinette together in one bright and inviting space. It’s easy to cook, gather, and unwind all in one place.

The first-floor Primary Bedroom offers comfortable privacy just steps away from the main living areas. A rear foyer off the kitchen leads to the garage, located at the back of the home, keeping the front of the home clean and welcoming.

Upstairs, two additional bedrooms and a full bath create a separate retreat for family, guests, hobbies, or home office needs.


New Home in Middleton, WI

Let’s Talk

If you have any questions, we’re here to help.

Elevations

Matisse Craftsman

Matisse English

Matisse Farmhouse

Matisse Traditional

Experience Your Home Design in Real Time

This tool is meant for inspiration. Homes are shown with upgraded hardboard siding. Because we work with different suppliers in each market, colors shown are examples only. If you love a specific look, we’ll match you with comparable options when you choose your finishes.

The Matisse


Plan Features

  • Energy Recovery Ventilators (ERVs): Enjoy continuous fresh air circulation without energy loss, maintaining superior indoor air quality and comfort.1.5” (R 7.5) foam insulation on outside of the full foundation wall
  • High-Efficiency Heating with Smart Control: Our 95% high-efficiency furnace paired with a digital smart thermostat ensures optimal indoor temperature and comfort while significantly reducing energy consumption and utility costs.
  • EPA Indoor airPLUS™ Certified
  • U.S. Department of Energy: Energy Star™ Certified
  • Complete field test performed by a third-party, certified professional
  • Wisconsin Focus on Energy™ homes exceeding minimum requirements
  • RESNET EnergySmart Builder
  • Superior Insulation for Ultimate Comfort: Closed-Cell Spray Foam Insulation (R-14) in basement box sills and 1.5” (R-7.5) foam insulation on the exterior foundation walls keep your home warm in winter and cool in summer, significantly reducing energy costs.
  • Air Tight Home:  Our Super Tight Homes benefit you by reducing energy bills, eliminating drafts, and improving indoor air quality, and make your new home more comfortable.

  • Energy Recovery Ventilators (ERVs): Enjoy continuous fresh air circulation without energy loss, maintaining superior indoor air quality and comfort.1.5” (R 7.5) foam insulation on outside of the full foundation wall
  • High-Efficiency Heating with Smart Control: Our 95% high-efficiency furnace paired with a digital smart thermostat ensures optimal indoor temperature and comfort while significantly reducing energy consumption and utility costs.

  • EPA Indoor airPLUS™ Certified
  • U.S. Department of Energy: Energy Star™ Certified
  • Complete field test performed by a third-party, certified professional
  • Wisconsin Focus on Energy™ homes exceeding minimum requirements
  • RESNET EnergySmart Builder

  • Superior Insulation for Ultimate Comfort: Closed-Cell Spray Foam Insulation (R-14) in basement box sills and 1.5” (R-7.5) foam insulation on the exterior foundation walls keep your home warm in winter and cool in summer, significantly reducing energy costs.
  • Air Tight Home:  Our Super Tight Homes benefit you by reducing energy bills, eliminating drafts, and improving indoor air quality, and make your new home more comfortable.
The Matisse New Home in Middleton, WI

Ranked 1st in Wisconsin and 7th in the US for the lowest average HERS score.

More Home Plans for You!


Let’s Connect.

Your EXTRAordinary Experience Starts Now!


Call or fill out the form below to start your journey to a healthier, more comfortable home! We're here to assist you in finding the perfect match from our range of quality homes, ensuring your experience with us is as extraordinary as the home you choose.

We promise, no spam. Just one-on-one chats with our Online Sales Team if you prefer texting.