Have Questions? We Have Answers

The Maple

Home Style: Two-Story


  • 4 - 5 Bedrooms
  • 2.5 Bathrooms
  • 2,652 - 2,696 Sq. Ft.
  • 2 - 3 Car Garage
  • EPA Indoor airPLUS & Energy Star Certified

About This Home Plan

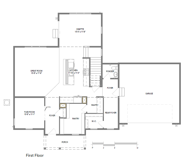
The Maple offers an easy, comfortable flow designed for busy households. The first floor brings together all the right spaces-an open kitchen with a large island, a walk-in pantry, and sightlines into both the dinette and the great room. It creates a bright central hub that works well for cooking, entertaining, or everyday hangouts. A front flex room adds extra versatility, giving you space for a home office, playroom, or guest area.

Near the garage entry, a rear foyer with a walk-in closet helps keep bags, coats, and gear organized, while a nearby powder room sits right off the main foyer for convenience.

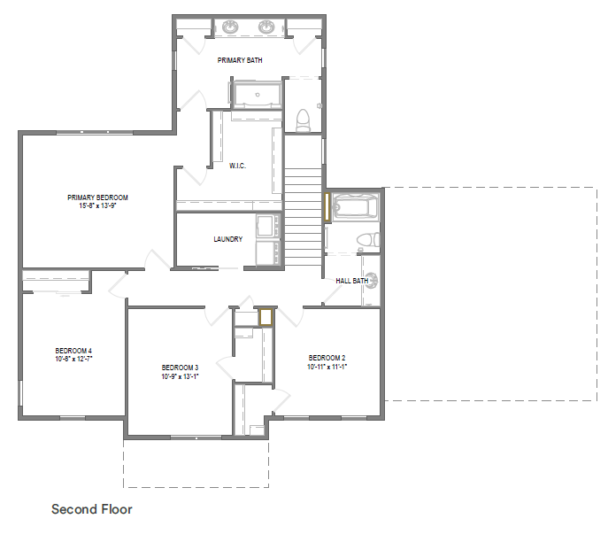
Upstairs, all four bedrooms are grouped together for privacy and practicality. The primary bedroom features a spacious walk-in closet and a private bath with dual sinks and a large shower. Three additional bedrooms share a full hall bath, and a second-floor laundry room sits right in the center.

With thoughtful storage, flexible spaces, and an open, connected main level, The Maple is designed to make everyday living feel simple and comfortable.


4br New Home in Oconomowoc, WI

Let’s Talk

If you have any questions, we’re here to help.

Elevations

Maple Craftsman

Maple English

Maple Modern

Maple Traditional

Experience Your Home Design in Real Time

This tool is meant for inspiration. Homes are shown with upgraded hardboard siding. Because we work with different suppliers in each market, colors shown are examples only. If you love a specific look, we’ll match you with comparable options when you choose your finishes.

The Maple


Plan Features

  • Energy Recovery Ventilators (ERVs): Enjoy continuous fresh air circulation without energy loss, maintaining superior indoor air quality and comfort.1.5” (R 7.5) foam insulation on outside of the full foundation wall
  • High-Efficiency Heating with Smart Control: Our 95% high-efficiency furnace paired with a digital smart thermostat ensures optimal indoor temperature and comfort while significantly reducing energy consumption and utility costs.
  • EPA Indoor airPLUS™ Certified
  • U.S. Department of Energy: Energy Star™ Certified
  • Complete field test performed by a third-party, certified professional
  • Wisconsin Focus on Energy™ homes exceeding minimum requirements
  • RESNET EnergySmart Builder
  • Superior Insulation for Ultimate Comfort: Closed-Cell Spray Foam Insulation (R-14) in basement box sills and 1.5” (R-7.5) foam insulation on the exterior foundation walls keep your home warm in winter and cool in summer, significantly reducing energy costs.
  • Air Tight Home:  Our Super Tight Homes benefit you by reducing energy bills, eliminating drafts, and improving indoor air quality, and make your new home more comfortable.

  • Energy Recovery Ventilators (ERVs): Enjoy continuous fresh air circulation without energy loss, maintaining superior indoor air quality and comfort.1.5” (R 7.5) foam insulation on outside of the full foundation wall
  • High-Efficiency Heating with Smart Control: Our 95% high-efficiency furnace paired with a digital smart thermostat ensures optimal indoor temperature and comfort while significantly reducing energy consumption and utility costs.

  • EPA Indoor airPLUS™ Certified
  • U.S. Department of Energy: Energy Star™ Certified
  • Complete field test performed by a third-party, certified professional
  • Wisconsin Focus on Energy™ homes exceeding minimum requirements
  • RESNET EnergySmart Builder

  • Superior Insulation for Ultimate Comfort: Closed-Cell Spray Foam Insulation (R-14) in basement box sills and 1.5” (R-7.5) foam insulation on the exterior foundation walls keep your home warm in winter and cool in summer, significantly reducing energy costs.
  • Air Tight Home:  Our Super Tight Homes benefit you by reducing energy bills, eliminating drafts, and improving indoor air quality, and make your new home more comfortable.
Oconomowoc, WI New Home

Ranked 1st in Wisconsin and 7th in the US for the lowest average HERS score.

More Home Plans for You!


Let’s Connect.

Your EXTRAordinary Experience Starts Now!


Call or fill out the form below to start your journey to a healthier, more comfortable home! We're here to assist you in finding the perfect match from our range of quality homes, ensuring your experience with us is as extraordinary as the home you choose.

We promise, no spam. Just one-on-one chats with our Online Sales Team if you prefer texting.